Chargement...
Transformation d'un appartement, Paris 20
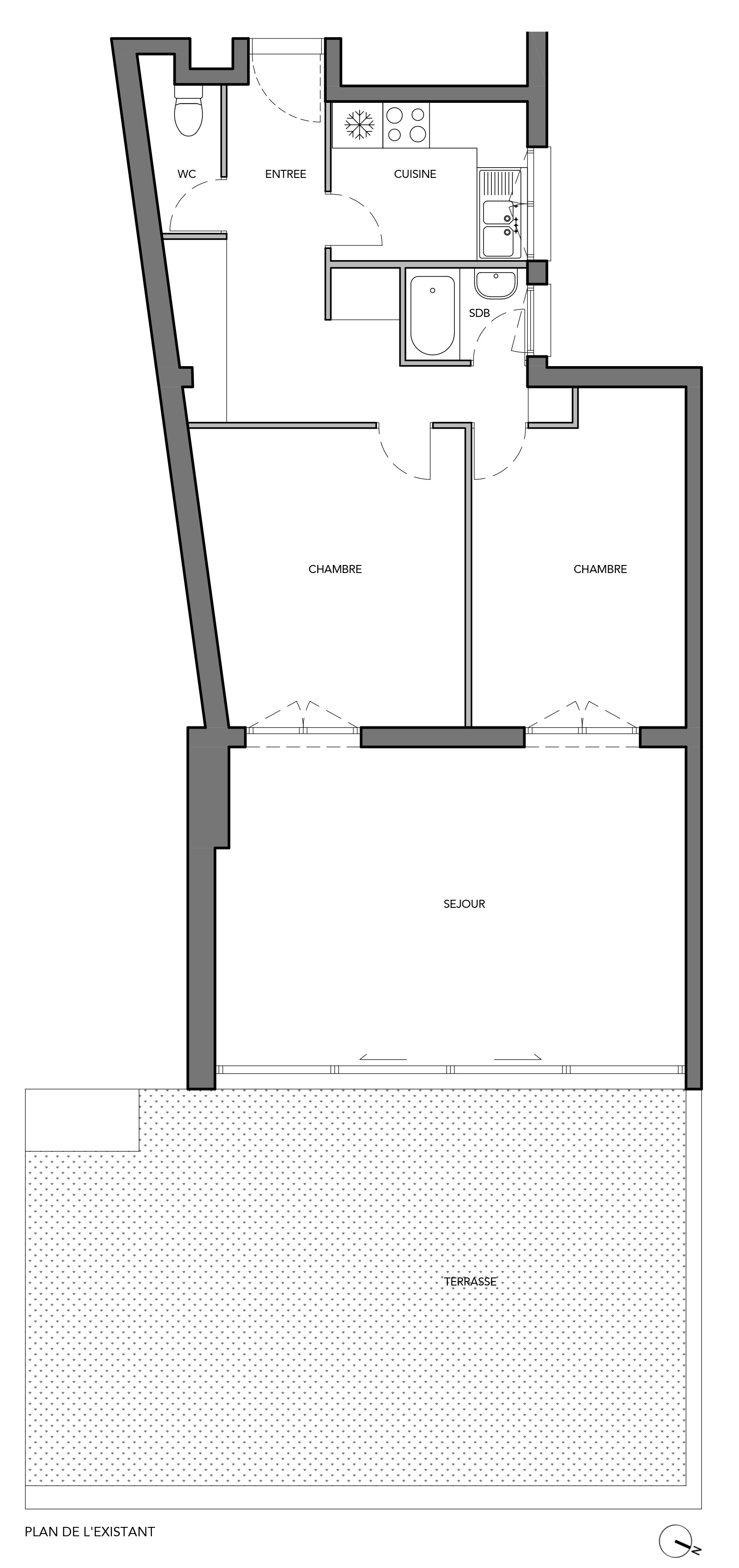
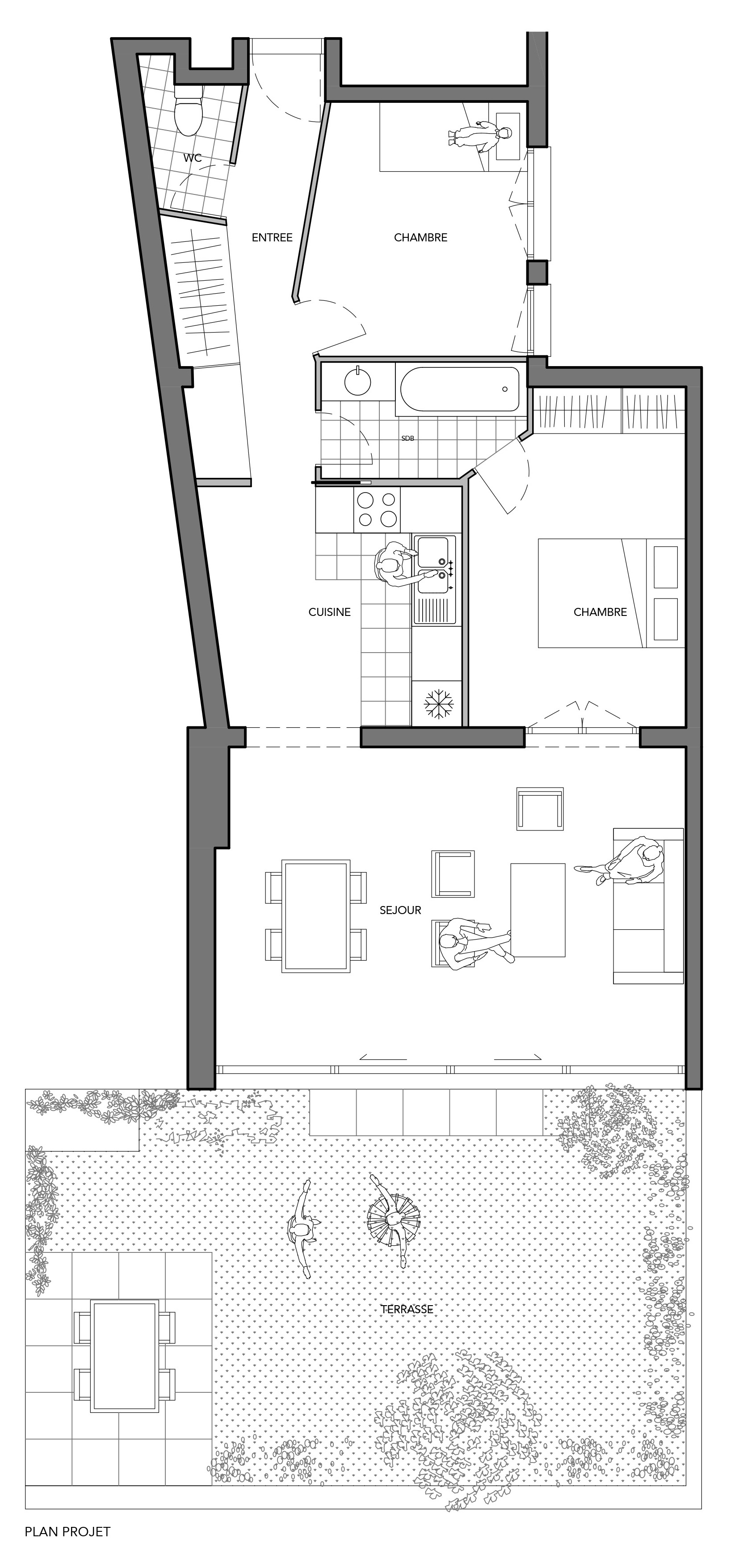
Programme | Cet appartement n'était plus habité depuis queslques années et tout était à y refaire. La nouvelle famille souhaitait une chambre d'enfant indépendante, créer une circulation plus fluide et rapprocher la cuisine du séjour.
Année | 2018
Mission | Complète
Maître d'œuvre | LiV Architecture
Maîtrise d'ouvrage | Privée
Surface d'intervention | 67m2
Coût travaux | 40 000 €