Chargement...
Réaménagement d’un duplex à Belleville, Paris 20
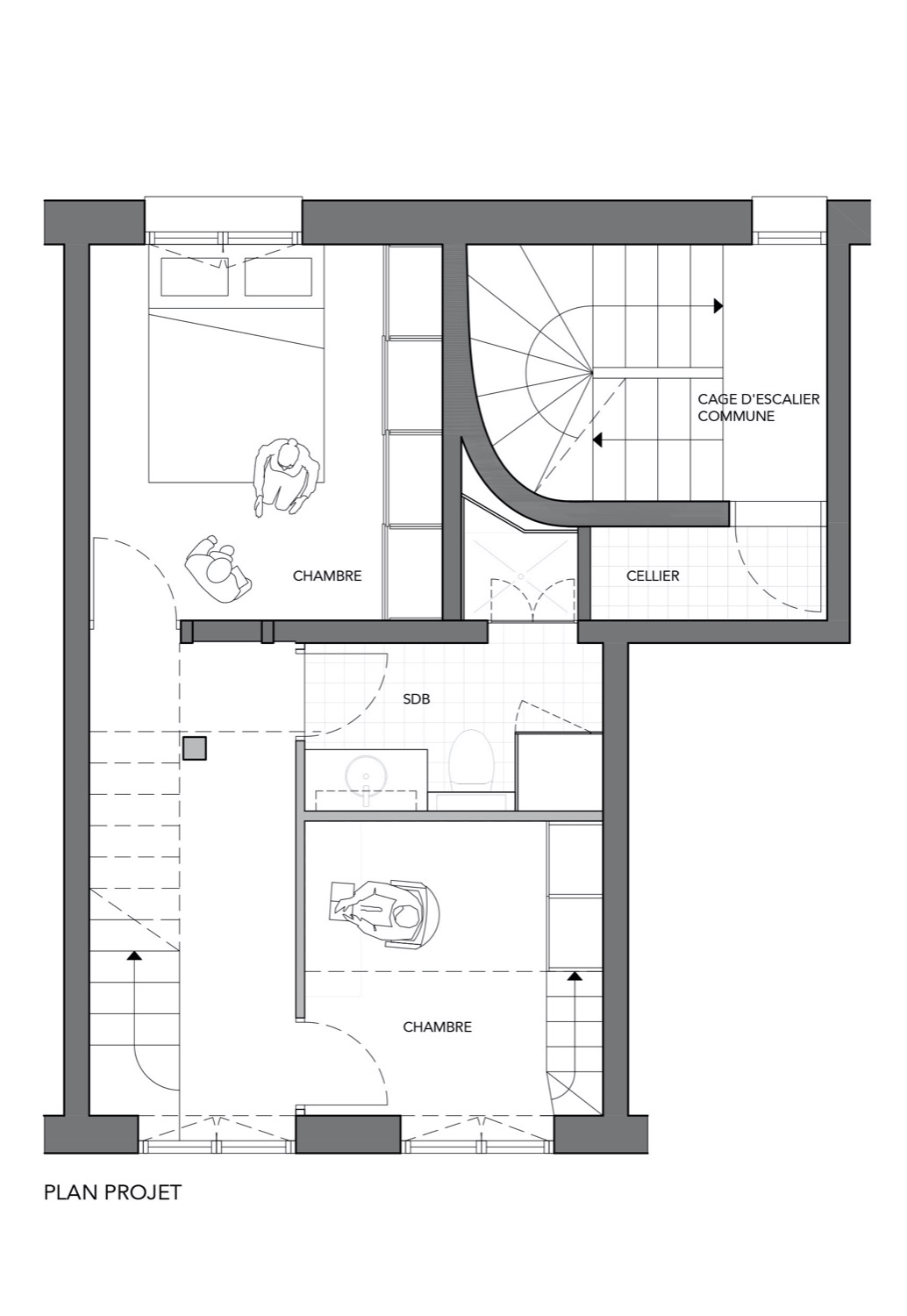
Programme | Dans ce duplex, il fallait réorganiser l’étage bas pour créer une nouvelle chambre en optimisant la salle de bain et le couloir. L’espace étroit et sous-exploité du dressing est devenu, grâce à la décondamnation de la porte palière existante, un cellier accessible depuis la cage d’escalier commune.
Année | 2020
Mission | complète
Maître d'œuvre | LiV architecture
Maîtrise d'ouvrage | privée
Surface d'intervention | 30m2 sur 80 m2
Coût travaux | 26 000 €