Chargement...
Transformation d'un immeuble, Pithiviers
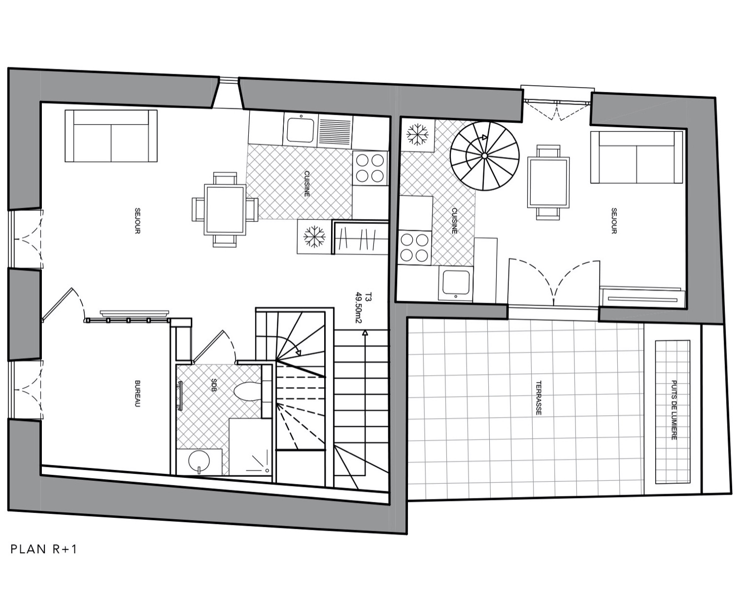
Programme | Le projet consiste en la transformation d’un bâtiment situé en centre-ville comprenant un bar-restaurant et un logement désaffectés en un petit collectif de trois logements.
Année | en cours
Mission | faisabilité > dépôt de permis de construire
Maître d'œuvre | LiV architecture
Maître d'œuvre | Avramova et associés architectes
Maîtrise d'ouvrage | privée
Surface d'intervention | 130 m2